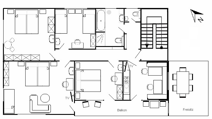
Die Gesamtwohnfläche der Ferienwohnung beträgt ca. 125 m2. Diese verteilt sich auf vier Schlafzimmer, eine Wohnküche, ein Badezimmer mit WC, Dusche und Badewanne, die separate Toilette und die Diele.Zusätzlich stehen Ihnen noch eine große überdachte Loggia und ein geräumiger Freisitz mit Südwestausrichtung zur Verfügung.
Die Wohnung ist nicht barrierefrei.
Sie befindet sich im ersten Obergeschoss unseres Hauses. Der Zugang erfolgt über eine Treppe.
Die Handskizze zeigt die derzeitige Aufteilung und Einrichtung. Da wir aber bemüht sind, unser Angebot für Sie ständig zu verbessern, kann sich an der Einrichtung natürlich jederzeit etwas ändern.

Unsere Wohnung ist "komplett" ausgestattet. Sie finden z. B. in der Einbauküche (Kühlschrank, Spülmaschine, Spüle, 4-Zonen-Ceranfeld mit Backofen, Dunstabzug) alle notwendigen Gegenstände und Geräte, um auch für die größere Familie die Mahlzeiten zu bereiten. So sind nicht nur ausreichende Mengen an Geschirr, Besteck und Töpfen vorhanden, sondern auch z. B. Kaffeemaschine, Brotschneidemaschine, Handmixer, Toaster, Wasserkocher.
Blick auf die Küchenzeile
Die Wohnküche bietet ausreichend Sitzgelegenheiten für die Mahlzeiten oder ein gemütliches Beisammensein. Ein Rundfunkempfänger und ein Flachbild-Fernseher mit SAT-Anschluss stehen Ihnen hier ebenfalls zur Verfügung.
Ecksitzgruppe
Im Badezimmer finden Sie einen Schrank mit Handtüchern, Trockentüchern ... und natürlich auch die Gerätschaften für die kleine Reinigung zwischendurch (Besen Staubsauger ...). Bei Bedarf stehen Ihnen im Keller auch Waschmaschine und Trockner zur Verfügung.
Werfen Sie ruhig noch einen Blick in andere Räume der Ferienwohnung, hier z. B. das "große" Wohn-Schlafzimmer mit drittem Bett, Sitzgruppe und SAT-TV:

Wohn-/Schlafzimmer 02
Oder das zweite
"große" Zimmer:

Schlafzimmer 01
Das Zimmer mit zwei Einzelbetten / Kinderzimmer:

Schlafzimmer 03
Oder das "kleinere" Zimmer mit Doppelbett:

Schlafzimmer 01
Das Badezimmer. Zusätzlich verfügen alle Schlafzimmer über ein großes Waschbecken.

Dusche mit fast ebenerdigem Einstieg
Im Badezimmer finden Sie einen Schrank mit Handtüchern, Trockentüchern ... und natürlich gibt es auch die Gerätschaften für die kleine Reinigung zwischendurch (Besen, Staubsauger, ...). Bei Bedarf stehen Ihnen im Keller auch Waschmaschine und Trockner zur Verfügung.
Loggia und Freisitz mit Süd-West-Ausrichtung ermöglichen es Ihnen, bei schönem Wetter zu jeder Tageszeit die Sonne und den herrlichen Ausblick zu genießen. Ausreichende Sitzmöglichkeiten (und auch ein Sonnenschirm) sind vorhanden.

Parkplätze befinden sich direkt vor dem Haus.
